Akiya for sale in:
Nagaoka City, Niigata, Chubu
¥7,000,000 JPY






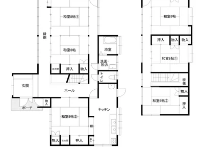
- Layout:
- 12LDK
- Building area:
- 424.45 m²
- Land area:
- 1533.86 m²
Property details
Description:
This property is a retro-style real estate for sale, situated on a three-way road. BETA
- Address:
- 新潟県長岡市飯島
- Date built:
- January 1932
- Current status:
- Akiya
- Land classification:
- Residential land
- Land rights:
- Ownership rights
- Structure:
- Wooden construction
- Topography:
- Flat
- Urban planning:
- Urbanisation control area
- Source:
Facilities
- Garden
Nearby places
| Bus stop | 2 min walk |
| Elementary school | 3.8km |
| Junior high school | 5.3km |
| Hospital | 7.7km |
AI-generated interpretations, summaries, and translations may contain errors. Refer to the original sources for accuracy.
The marker position may not always be precise. When available, the Street View location is the closest available photo, and the default orientation is north. Please adjust as needed.
You may also like
About Nagaoka City
Nagaoka City is known for its historical significance and its annual fireworks festival, one of the largest in Japan. It offers a variety of local cuisines, including rice cracker snacks known as "senbei" and "hegi soba" noodles. Surrounded by natural beauty, it's close to ski resorts in winter and scenic mountains for hiking. The city is also a hub for traditional crafts like woven textiles.
Serious about finding akiya?
Create an account to:
- Bookmark listings to view later
- Search by latest listings
- See listing history







