栃木県佐野市柿平町の空き家
200万円






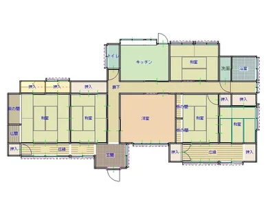
- 間取り:
- 7DK
- 建物面積:
- 113.21 m²
- 土地面積:
- 590.81 m²
物件詳細
説明:
この物件は修理が必要で、入居者の負担となります。駐車場はありません。 BETA
- 住所:
- 栃木県佐野市柿平町
- 現状:
- 空家
- 土地区分:
- 宅地
- 構造:
- 木造
- 都市計画:
- 区域外
- 用途地域:
- 無指定
設備
- 物置
近くの場所
| 駅 | 10.0キロ |
| スーパー | 10.2キロ |
| 病院 | 14.1キロ |
AIによる解釈、要約、翻訳には誤りが含まれる可能性があります。正確性を確認するには、元の情報源を参照してください。
佐野市について
栃木県に位置する佐野市は、佐野ラーメンで知られています。自然に恵まれたこの地域は、佐野プレミアム・アウトレットなどのショッピングスポットがあり、多くの訪問者を引きつけています。また、佐野焼きなどの伝統工芸品にも力を入れています。日光へのアクセスが良いことも特徴で、世界遺産に登録されている神社や美しい自然景観を楽しむことができます。
空き家を探したい方へ
アカウントを作成して、以下の機能を利用できます。
- 物件をお気に入りに登録する
- 最新の物件を検索する
- 物件の履歴を見る
*地図はすべての物件で利用できるわけではありません。また、場所は正確ではない場合があります。







