Akiya for sale in:
Kadogawa Town, Higashiusuki, Miyazaki, Kyushu
¥17,300,000 JPY






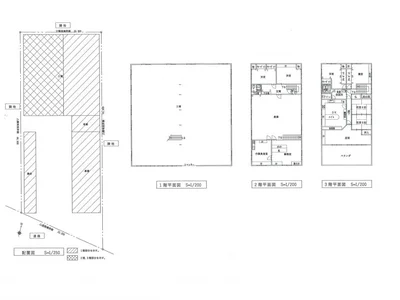
- Layout:
- 3LDK
- Building area:
- 146.99 m²
- Land area:
- 456.44 m²
Property details
Description:
This property is located in a quiet residential area and features good ventilation and sunlight exposure. It has built-in furniture and ample storage, making it conducive to a tidy living environment. The bathroom is equipped with air conditioning, providing comfort and protection against temperature shock. The house is set slightly above the road, allowing for privacy from both pedestrians and vehicles. BETA
- Address:
- 宮崎県東臼杵郡門川町加草4丁目
- Date built:
- January 1993
- Current status:
- Akiya
- Land classification:
- Residential land
- Land rights:
- Ownership rights
- Structure:
- Wooden construction
- Urban planning:
- Urban area
- Source:
Facilities
- Car parking
- Electricity connection
- Garden
- Japanese-style room(s)
- Propane gas supply (bottled)
- Separate toilet and bath
- Septic-tank sewerage
- Shower
- Space for washing machine inside
- Storage in all rooms
- Sunken heated table (kotatsu)
- Three air conditioners
- Wardrobe
- Washbasin
- Water supply
Nearby places
| Train station | 5 min drive |
AI-generated interpretations, summaries, and translations may contain errors. Refer to the original sources for accuracy.
You may also like
About Kadogawa Town
Kadogawa is a town located in Miyazaki Prefecture, offering scenic views of the Pacific Ocean. It is known for its rich agriculture, including mandarin oranges and tea. Nearby attractions include the Hyuga Sea Cliff and Nippo Coast, which provide opportunities for outdoor activities. Kadogawa also prides itself on its fresh seafood, particularly its mackerel.
Serious about finding akiya?
Create an account to:
- Bookmark listings to view later
- Search by latest listings
- See listing history







