Akiya for sale in:
Ofunato City, Iwate, Tohoku
¥4,200,000 JPY
- 5 days ago






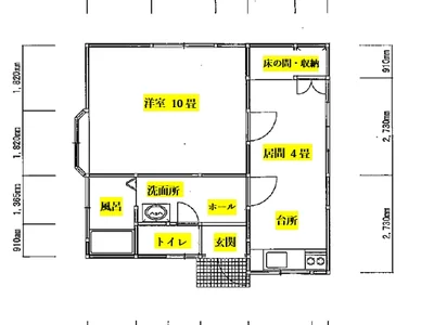
- Layout:
- 6SK
- Building area:
- 132.85 m²
- Land area:
- 688.35 m²
Property details
Description:
This property features a shared water tank that utilizes natural water, with an annual cleaning conducted by the users. The residence has been extended in 1977 and the storage shed was newly built in 1971. Each floor has an area of 23.18 square meters and includes a toilet. The property is partially located within a landslide warning area (yellow zone). BETA
- Address:
- 岩手県大船渡市立根町字小林ー
- Date built:
- December 1963
- Current status:
- Akiya
- Land classification:
- Residential land
- Land rights:
- Ownership rights
- Structure:
- Wooden construction
- Urban planning:
- Non-delineated
- Zoning:
- Undesignated
- Source:
Facilities
- Car parking
- Shed
Nearby places
| No nearby places listed |
AI-generated interpretations, summaries, and translations may contain errors. Refer to the original sources for accuracy.
You may also like
About Ofunato City
Ofunato City is located in the coastal area of Iwate Prefecture, offering a scenic view of the Pacific Ocean. It's known for its rich seafood, especially oysters and scallops. Nearby attractions include the Goishi Coast, renowned for its beautiful pebble beaches. The city is also close to the Sanriku Fukko National Park, which offers hiking and scenic views.
Serious about finding akiya?
Create an account to:
- Bookmark listings to view later
- Search by latest listings
- See listing history







